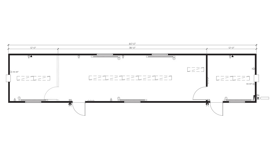
12' x 60' Portable Office
BC
MODEL# PO1260B
- 720 square feet
- Private Office
- Open Office/Meeting Area
- Climate Controlled
- Two Entrances
- Five Windows
- Optional Office Partition
- High-quality exterior and interior finishes
- For rent and sale!




Specifications
Square Feet | 720 |
Square Meters | 67 |
Size | 12' x 60' |
Interior Wall Finish | VCG |
Flooring Material | VCT |
HVAC Quantity | 1 |
Office (qty) | 1 |